Contactez-nous

Appartement à vendre à La Madeleineréf. VA22906-GF

790 000 € FAI

Appartement esprit maison à Botanique

NOUVEAUTÉ EN EXCLUSIVITÉ – Tramway Botanique

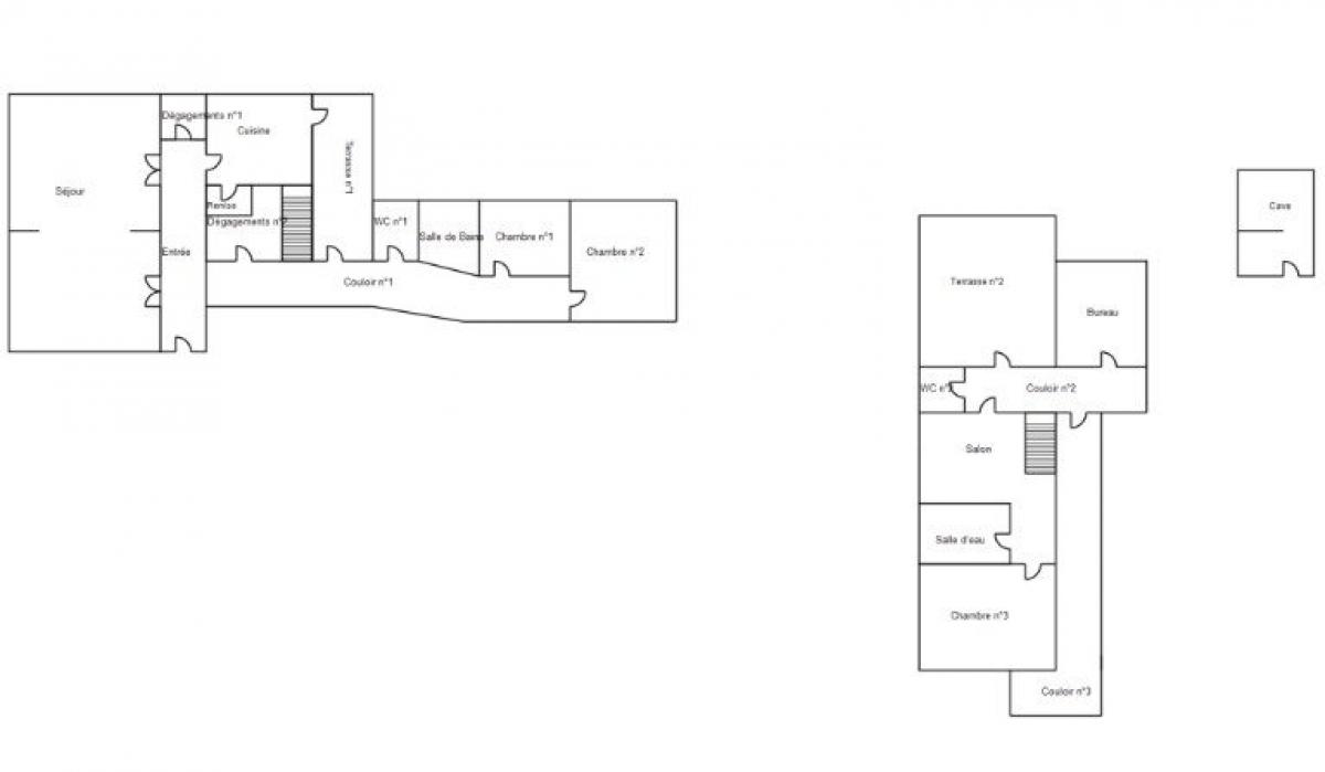
Idéalement situé au pied du tramway, dans l’une des plus belles rues de La Madeleine, découvrez cet ensemble immobilier rare composé de deux appartements réunis en un seul lot d’habitation, développant 173 m² au total.

Au rez-de-chaussée, une ancienne conciergerie aménagée en T3 de 68 m².Un escalier privatif permet d’accéder directement au premier étage, où se trouve un second appartement de type 3 de 105 m² disposant d'un balcon de 5 m².

L’ensemble bénéficie également d’une agréable cour privative de 36 m², offrant un véritable espace extérieur au calme.

La copropriété est équipée de 2 ascenseurs.Chauffage individuel au gaz.

Une cave avec accès direct sur rue, particulièrement pratique pour le stationnement de vélos, complète ce bien.

DPE : D – GES : D

Un bien unique, idéal pour une résidence principale avec espace indépendant, ou un projet familial.



Honoraires inclus de 3.95% TTC à la charge de l'acquéreur. Prix hors honoraires 760 000 €. Dans une copropriété de 41 lots. Aucune procédure n'est en cours. Classe énergie D, Classe climat D Montant moyen estimé des dépenses annuelles d'énergie pour un usage standard, établi à partir des prix de l'énergie de l'année 2021 : entre 3584.00 et 4850.00 €. Les informations sur

  • surface habitable

    173.00m2 hab.

  • chambres

    4 chambre(s)

  • salles de bain

    2 salle(s) de bain

  • chauffage

    gaz

  • balcon

    1 balcon(s)

Détail du prix

Copropriété
Nombre de lots dans la copropriété : 41 lots
Montant des charges courantes annuelles : 3 000 €/an soit 250 €/mois


Honoraires à la charge de l'acquéreur : 3.8% TTC
Prix de vente hors honoraires : 760 000 €
Prix de vente honoraires inclus : 790 000€

Nos honoraires

Diagnostic performance énergétique

Consommation
énergétique

Indice d'émission de gaz
à effet de serre

En savoir +
< 50A
51 à  90B
91 à  150C
151 à  230D
231 à  330E
331 à  450F
> 450G
<= 5A
6 à  10B
11 à  20C
21 à  35D
36 à  55E
56 à  80F
> 80G

Contactez-nous

Ces biens pourraient vous intéresser...