Contactez-nous

Maison à vendre à Croixréf. VM38723-GF

1 050 000 € FAI

DEMEURE BOURGEOISE AVEC UNE PARTIE LIBERALE



VIVRE AU CENTRE VILLE DE CROIX

Croix Mairie
Emplacement de premier ordre pour cette magnifique demeure bourgeoise au charme préservé, située au cœur du centre ville, elle répondra parfaitement à un projet de famille avec la possibilité de concilier une partie professionnelle ou location au rez-de-chaussée.

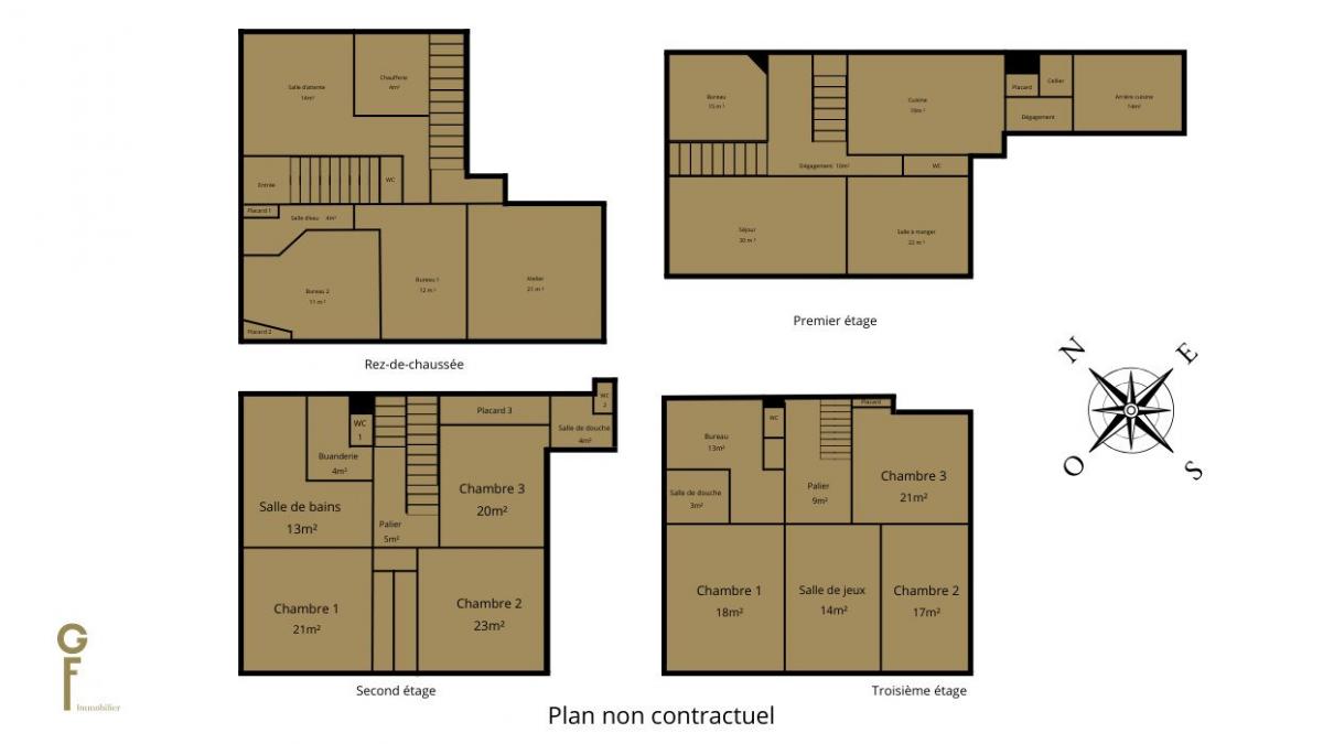
Implantée sur une parcelle paysagée de 687 m², elle développe 375 m² habitables sur quatre niveaux.

Le rez-de-chaussée distribue trois bureaux avec deux accès indépendants, une salle d'eau et un atelier.
Le premier étage dessert une réception de caractère traversante de 52 m² agrémentée de parquet et de deux cheminées feu de bois, une cuisine séparée de 19 m² entièrement équipée avec son coin repas, un cellier, une salle de sport de 14m² et un bureau cosy de 15 m² avec une cheminée décorative.
L'accès direct au jardin se fait par une large terrasse de 40 m² avec vue plongeante sur un jardin clos exposé sud-est de 400 m².
Le second étage offre deux chambres de 21 m² - 23 m² pourvues de placards, une troisième chambre de 20 m² avec des placards, une salle de douche, des WC, plus une salle de bains, une buanderie et des WC.
Le troisième étage propose trois chambres de 17 m² - 18 m² - 21 m², une salle de jeux de 14 m², un bureau de 13 m², une salle de douche et des WC.

Un portail motorisé

  • surface habitable

    375.00m2 hab.

  • chambres

    7 chambre(s)

  • salles de bain

    1 salle(s) de bain

  • chauffage

    gaz

  • terrain

    Terrain 687 m2

  • salle d'eau

    2 salle(s) d'eau

Détail du prix

Honoraires à la charge de l'acquéreur : 4.76% TTC
Prix de vente hors honoraires : 1 000 000 €
Prix de vente honoraires inclus : 1 050 000€

Nos honoraires

Diagnostic performance énergétique

Consommation
énergétique

Indice d'émission de gaz
à effet de serre

En savoir +
< 50A
51 à  90B
91 à  150C
151 à  230D
231 à  330E
331 à  450F
> 450G
<= 5A
6 à  10B
11 à  20C
21 à  35D
36 à  55E
56 à  80F
> 80G

Contactez-nous

Ces biens pourraient vous intéresser...