Contactez-nous

Maison à vendre à Merlimontréf. VM38194-GF

391 500 € FAI

Longère pleine de charme

Bien en semi exclusivité
Cette longère située sur la commune de Merlimont de 144 M 2 habitables avec annexes pouvant se transformer en volumes de vie supplémentaires est érigée sur une belle parcelle paysagée de 1757 M 2.
Au rez -de -chaussée , vous découvrirez une pièce de vie avec cheminée, une cuisine équipée, une chambre avec son bureau attenant, une SDB, un WC.
L'étage dessert une grande mezzanine, deux chambres et une SDB.
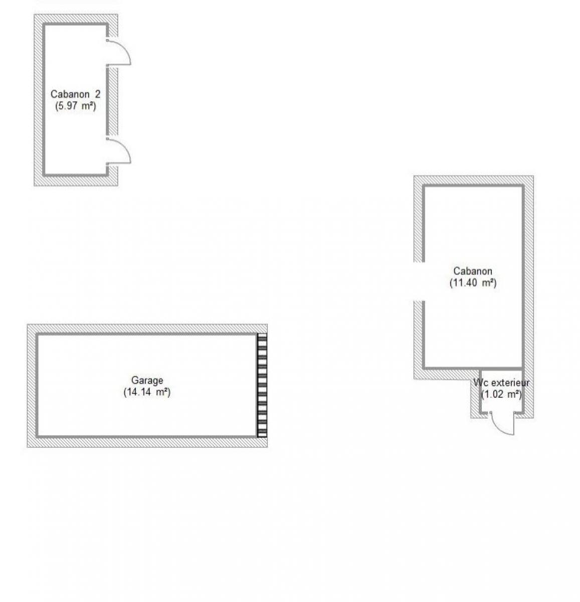
2 cabanons de jardin.
Un beau volume supplémentaire jouxte l'habitation, il peut au gré de vos envies se transformer en garage, extension de la partie habitable, cellule pour une profession libérale.
Ce bien est vendu avec une décote effectuée de 18000 € pour une vente à terme sous libération de 18 mois maximum.
Charme au rendez-vous pour cette propriété à visiter rapidement!

Honoraires inclus de 5.24% TTC à la charge de l'acquéreur. Prix hors honoraires 372 000 €. Classe énergie D, Classe climat D Montant moyen estimé des dépenses annuelles d'énergie pour un usage standard, établi à partir des prix de l'énergie de l'année 2021 : entre 2424.00 et 3280.00 €. Les informations sur les risques auxquels ce bien est exposé sont disponibles sur le site Géorisques : georisques.gouv.fr.

Votre conseiller Villa le Touquet : Caroline Pamelart
Agent commercial (Entreprise individuelle)

  • surface habitable

    144.00m2 hab.

  • chambres

    4 chambre(s)

  • salles de bain

    2 salle(s) de bain

  • chauffage

    gaz

  • terrain

    Terrain 1757 m2

Détail du prix

Honoraires à la charge de l'acquéreur : 4.98% TTC
Prix de vente hors honoraires : 372 000 €
Prix de vente honoraires inclus : 391 500€

Nos honoraires

Diagnostic performance énergétique

Consommation
énergétique

Indice d'émission de gaz
à effet de serre

En savoir +
< 50A
51 à  90B
91 à  150C
151 à  230D
231 à  330E
331 à  450F
> 450G
<= 5A
6 à  10B
11 à  20C
21 à  35D
36 à  55E
56 à  80F
> 80G

Contactez-nous

Ces biens pourraient vous intéresser...